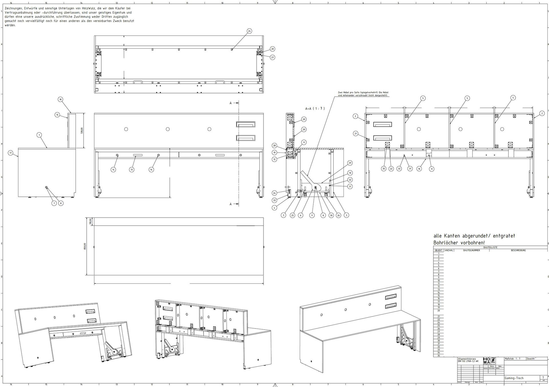
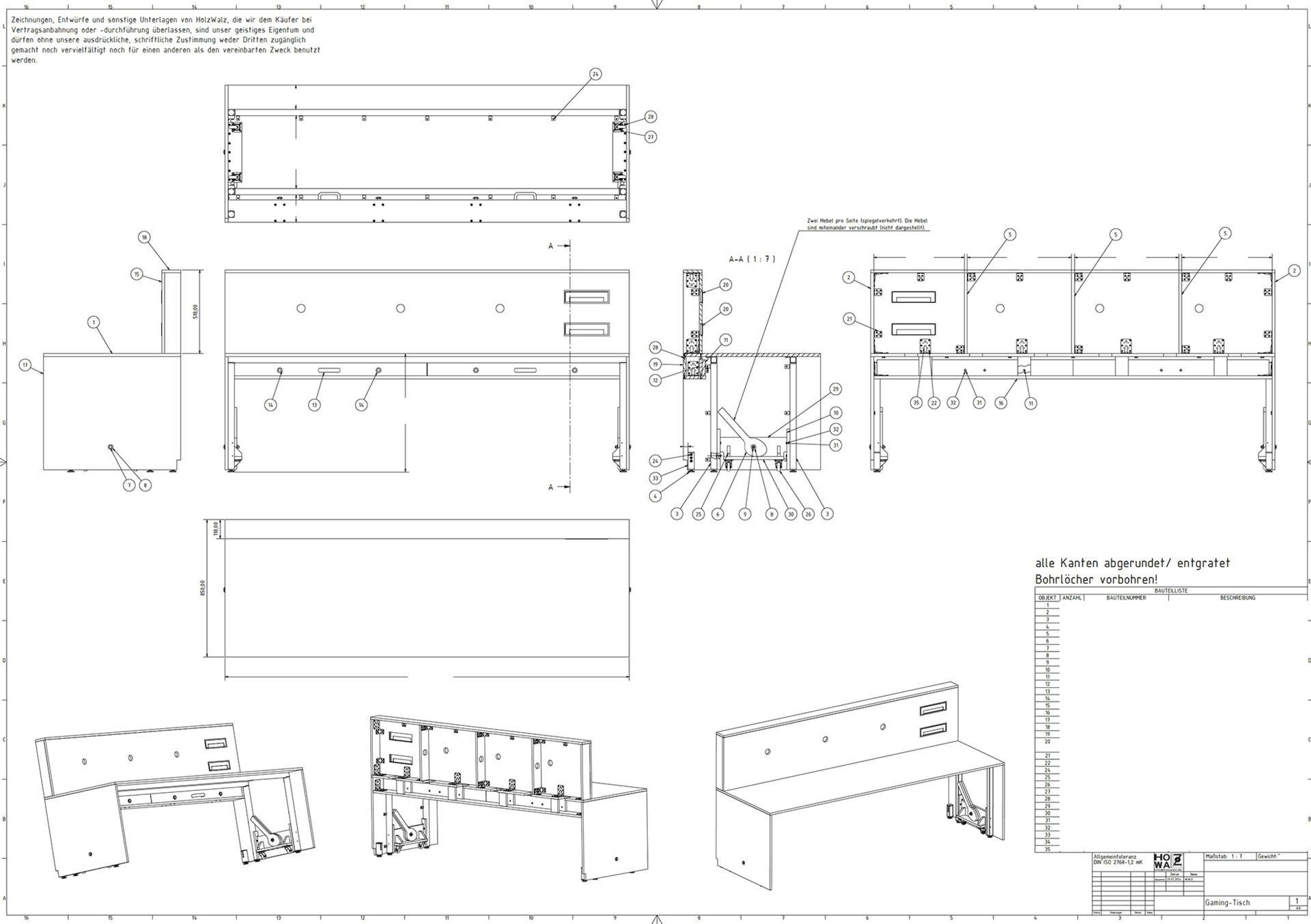
Bauplan Gaming-Schreibtisch
Bauplan Gaming-Schreibtisch XXL – maximaler Platz, starkes Design
Auf Wunsch meines Sohnes entstand dieser XXL-Gaming-Schreibtisch – ein echtes Unikat für maximale Spielfläche und perfektes Kabelmanagement.
Mit seiner beeindruckenden
Breite von 2,50 m bietet er bequem Platz für
drei 27-Zoll-Monitore plus PC-Tower. Die
doppelte Rückwand sorgt dafür, dass sämtliche Kabel unsichtbar verschwinden.
Gefertigt ist der Tisch komplett aus schwarz beschichteter 18 mm Multiplex-Birke. Das Herzstück bilden zwei geschweißte Stahlrahmen (40 × 40 × 4 mm), die die enorme Breite stabil tragen.
Trotz seiner
120 kg ist der Tisch dank eines cleveren
Hebemechanismus mobil: anheben, auf Rollen fahren, fertig.
📦 Bauplan-Inhalt:
- Alle Fertigungszeichnungen & Baugruppen mit Stücklisten im PDF-Format
- 3D-Modell im STEP-Format
💰 Materialkosten: ca. 1.800 €
- Multiplex schwarz: 700 €
- Schweißgestell: 700 €
- Schrauben & Winkel: 200 €
- Rollen & Füße: 100 €
- Farbe & Kantenumleimer: 50 €
- Kleinteile: 50 €
✨ Highlights:
- Multiplex-Birke mit schwarzer PP-Beschichtung
- Doppelte Rückwand für sauberes Kabelmanagement
- Schwarze Kantenumleimer an allen sichtbaren Kanten
- Höhenverstellbare Stellfüße
- Mobil durch integrierten Hebemechanismus
- Gesamtmaße: B 2,50 m × T 0,85 m × H 1,23 m
- Gewicht: 120 kg
🛠 Benötigtes Werkzeug:
- Lineale, Winkel, Bleistift
- Handkreissäge mit Führungsschiene
- Stichsäge
- Bügeleisen für Kantenumleimer
- Bohrmaschine mit verschiedenen Bohrern & Forstnerbohrern
- Schleifpapier
Falls Sie weitere Informationen zum Aufbau der Zeichnungen oder Umgang mit dem 3D- Modell benötigen, finden Sie hier eine Zusammenstellung der wichtigsten Fragen: zu den FAQ













